Дури и стан од 30 квадратни метри може да биде многу удобен ако висината е доволна за да се создаде галерија за спиење, инспирирана од архитектот Адријан Ланку.

Овој стан ќе ве импресионира со својата едноставност, но и со својата практичност која е неопходна за помалите станови.
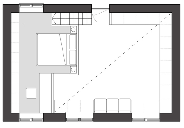
Адријан Ланку ја искористи висината на таванот и го постави просторот за спиење во галеријата над купатилото.
Приземјето има дневна соба, агол за работа, бања и кујна која е одделена од дневната соба со маса наменета за јадење.
До галеријата се доаѓа со невообичаените скали кои архитектот ги предвидел како простор за складирање.
Затоа скалите изгледаат како кутии – генијално и едноставно решение за помали станови и складирање на работи!

Боите се избрани за станот да изгледа попространо отколку што е – големи површини на плакарот, подот, таванот на галеријата се направени во светла боја со дезен на природно дрво, а ѕидовите се бели.
Единствени акцент на бојата е даден врз простирката на подот со бојата на виното и апстрактната слика на ѕидот од дневната соба.
Романскиот архитект Адријан Ланку повторно се покажа како мајстор на својот занает!
Впечатокот, исто така , го дава и силната светлина која продира во овој стан – два симетрични прозорци без завеси се извор на дневна светлина, а вештачкото осветлување е внимателно дизајнирано – централниот извор се неколку топки на различни висини, кујната има неколку вградени тавански ламби, а шанкот има свој лустер.






